不確実性と進化するオンラインショッピングが共存する今、フィジカルストアの存在意義はどこにあるのでしょうか?30年近くにわたりショップなどのインテリアデザインを手掛けてきた、ワンダーウォールの片山正通氏をおいてこの質問に答えることができる人は他にいないかもしれません。彼はAMBUSH®初の路面店、AMBUSH® WORKSHOPも手掛けました。東京・渋谷の中心に位置するショップでは、控えめなエントランスから白い扉を抜けるとAMBUSH®独自の世界が広がります。浮かんでいるようなカウンターから、フレキシブルな棚やテーブルまで、自在に進化し続けるクリエイティブな空間。AMBUSH® WORKSHOPのデザインについて、そしてフィジカルストアの重要性とその将来について片山氏が語ります。




















フィジカルストアは、ブランドの世界観を五感を使って体験する場所。インターネットの発達に伴い、実際に体験することの重要性がより高くなっていると考えています。
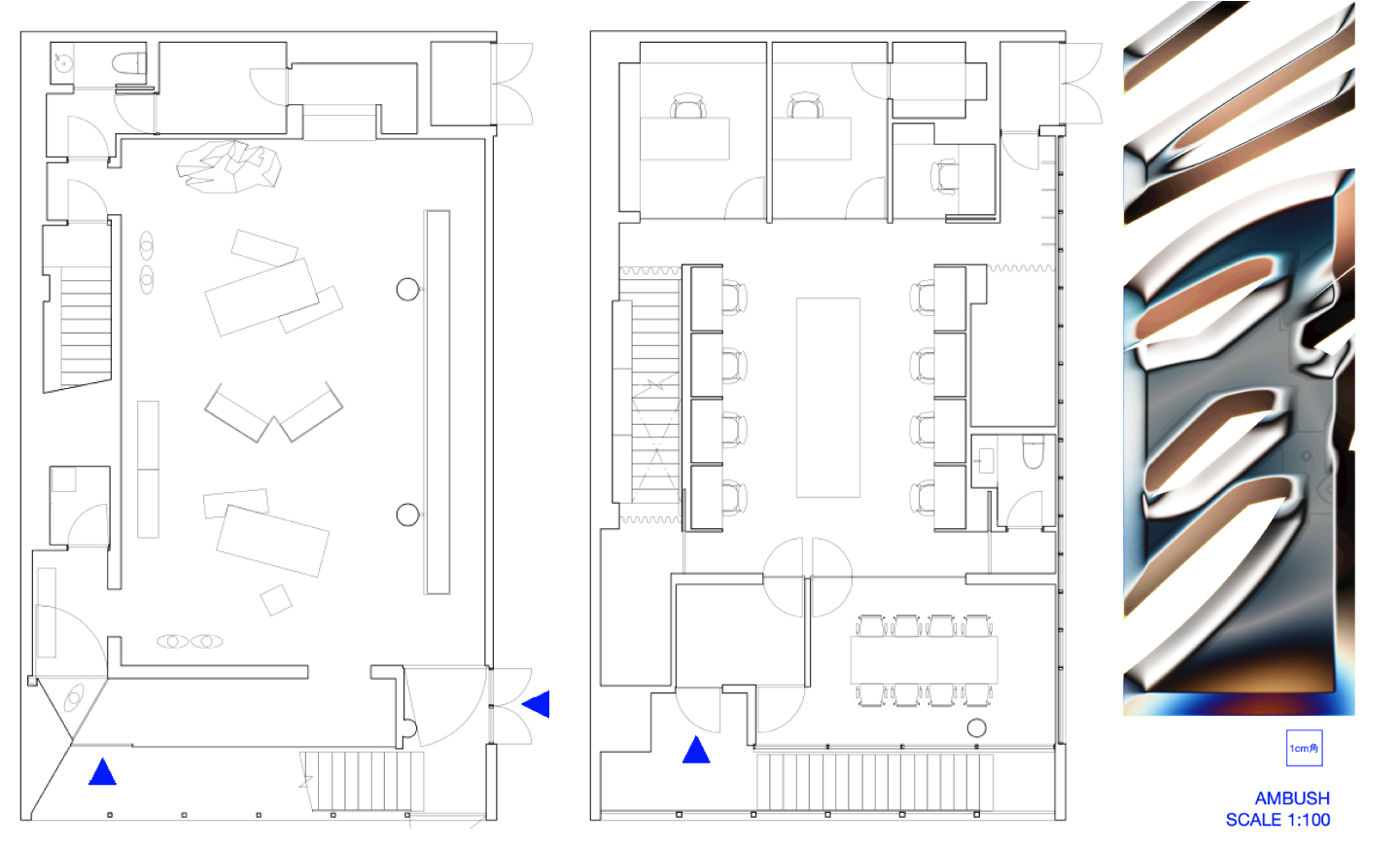
AMBUSH®WORKSHOPをデザインするにあたっては、常に進化を続ける VERBALとYOONのクリエイティビティや挑戦を受け止められるように、レイアウトに フレキシビリティを持たせました。
AMBUSH®WORKSHOPで一番好きな要素は、浮遊しているような、大きなカウンターです。
空間内の素材や質感は、置かれるアイテムと調和しながらブランドの世界観を伝えていくので、デザインにおいて重要な要素となります。ここでは、クリエイションを引き立てるべく、あえてソリッドなものを選択しました。
デザインのインスピレーション源は、VERBALとYOONとの会話。ここで発信されるクリエイションは、常に彼ら自身を反映する場所になることは明解だったので、それを受け止める”器”であるべきだと考えました。
今年はクリエイターにとってもイレギュラーな年となりました。僕の会社でもスタッフがリモートワークになった時期がありましたが、僕自身の働き方は全く変わっていません。コミュニケーションは多様化しましたが、便利なことはどんどん取り入れていけばいと思っています。
フィジカルストアの今後を考えると、その場所 にしかない体験をどれだけ提供できるかだと思うんです。それを、ブランド側も、店をデザインするデザイナーも、いま以上に考えないといけないですね。